Redbank Plains

20 Stormbird Street

Sold

Sold for $500,000

Beautiful Investment Property in Great Location!

.

* Please note photos used were taken prior to current tenant moving in.

This beautiful family home is situated in the sought after Fernbrooke Ridge Estate in Redbank Plains.

The property is in the perfect location for you or your next investment. With close access to primary and secondary schooling, shopping centres, service stations and easy access to the Centenary Highway.

Features at a glance:

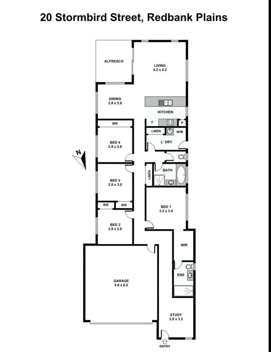
* 4 Spacious Bedrooms with Built-In Wardrobes

* Master Bedroom with Ensuite and Walk-In-Robe

* Family & Meals Area - Spacious with Air-Conditioning

* Gourmet kitchen with plenty of bench space and dishwasher

* Main Bathroom with Separate Toilet

* Alfresco Dining Area - great for the BBQ

* Fully Fenced 320m2 low maintenance yard

And .......

Redbank Plains is close to transport (buses and trains) and major highways, and is still one of the most affordable locations around!

This property has the potential to be a fantastic investment in a real growth area with tenants paying $380 per week until January 2023, or the ideal family home once the tenants lease is over.

This property will go quick!!

Call Emma today for your private inspection.

* Property was built in 2018
* Council rates approx $496 per quarter

Disclaimer:
Qteam Realty has taken all reasonable steps to ensure that the information contained in this advertisement is true and correct but accept no responsibility and disclaim all liability in respect to any errors, omissions, inaccuracies or misstatements contained. Prospective purchasers should make their own enquiries to verify the information contained in this advertisement.


Features

4

2

2

Property ID 21036435
Bedrooms 4
Bathrooms 2
Garage 2
Land Size 320 Square Mtr approx.

Contact

Property Enquiry

Questions?
Please complete the form below.

Your Details
Your Enquiry
  1. Please describe how we can be of assistance to you.

  2.  

    Would you like to join our mail list?

Submit